對于污水泵的安裝方式了解是非常重要的,下文就是關于污水泵的幾種安裝方式的介紹,通過閱讀,客戶可以更加清楚明了的知道污水泵如何安裝的。
尤孚泵業的技術指導指出,目前尤孚泵業的污水泵有下面幾種常見的安裝方式:
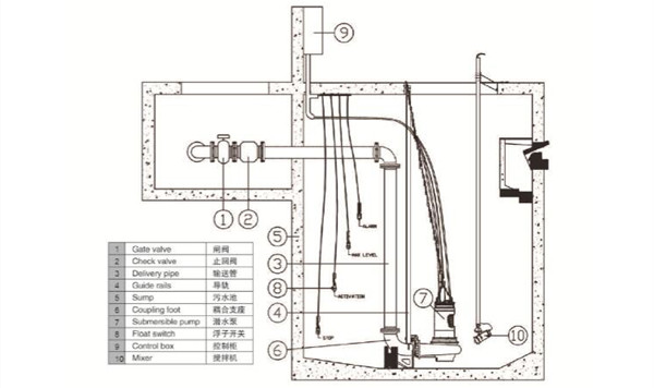
自動耦合系統安裝
干坑安裝

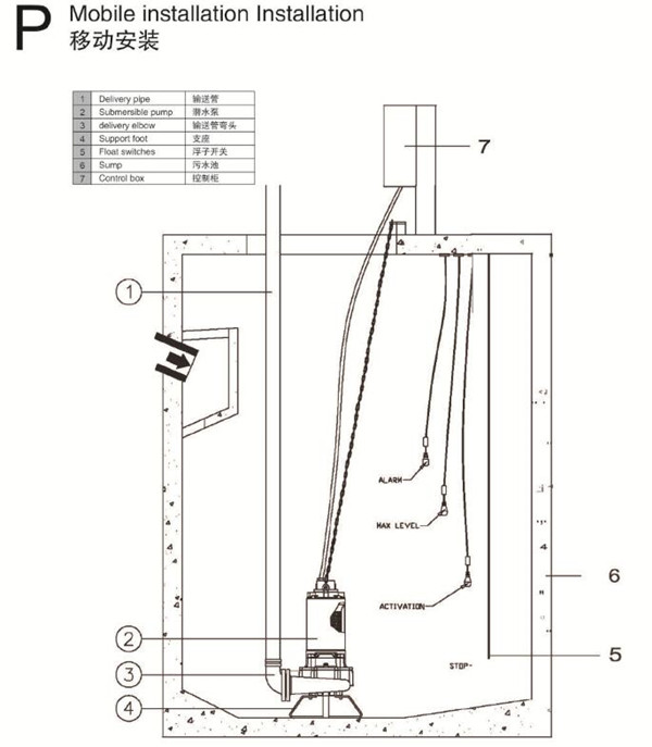
移動安裝
以上的文章是關于污水泵的安裝方式的介紹,如果有任何疑問,可以在線咨詢尤孚泵業的客服,我們會及時給你回復。推薦閱讀:污水泵型號及參數
尤孚自主研發設計的污水泵,是意大利原裝進口產品。產品的材質可選范圍廣,并根據不同的應用工況及水質特點進行設計出不同的葉輪型式,確保為你提供更加專業化的解決方案。
尤孚是一家全球化的水泵產品和系統制造商。我們提供先進的產品、服務和解決方案,滿足您的多元需求。源自對創新的傳承,尤孚致力于對水泵技術、產品和解決方案的不斷改進。
尤孚提供潛水泵、地面泵、深井泵、污水泵、泵系統產品和售后服務,為客戶提供量身定做的解決方案。




